Villa a schiera d'angolo in vendita

San Prospero, Via Tondelli - San Pietro
€ 245.000
4 locali 4 locali
135 Mq 135 Mq

Villa a schiera d'angolo in vendita

San Prospero, Via Tondelli - San Pietro

Descrizione annuncio

San Prospero – Villette quadrifoglio di nuova costruzione

In una tranquilla frazione del Comune di San Prospero sono in fase di realizzazione quattro villette a quadrifoglio, ciascuna con ingresso indipendente e giardino privato.

Le abitazioni si sviluppano su due soli livelli, offrendo spazi funzionali e ben distribuiti:

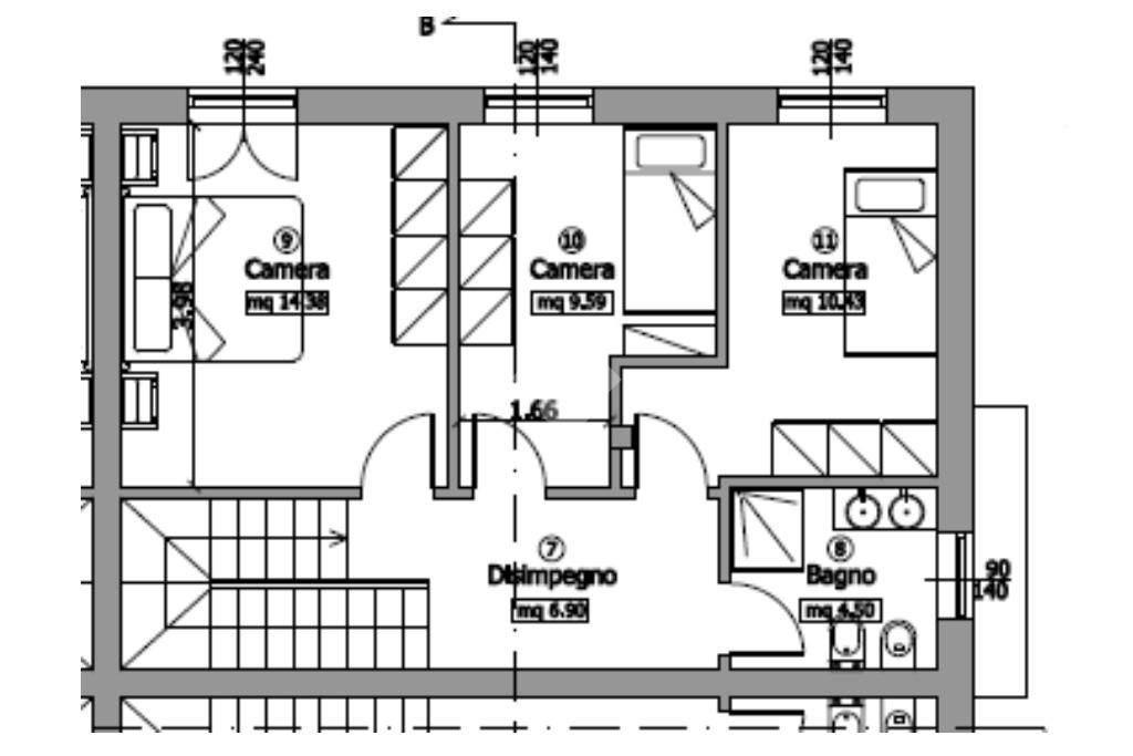
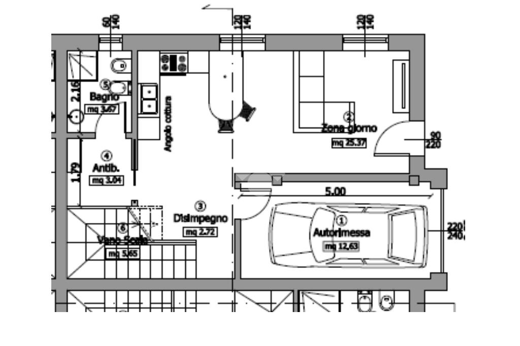
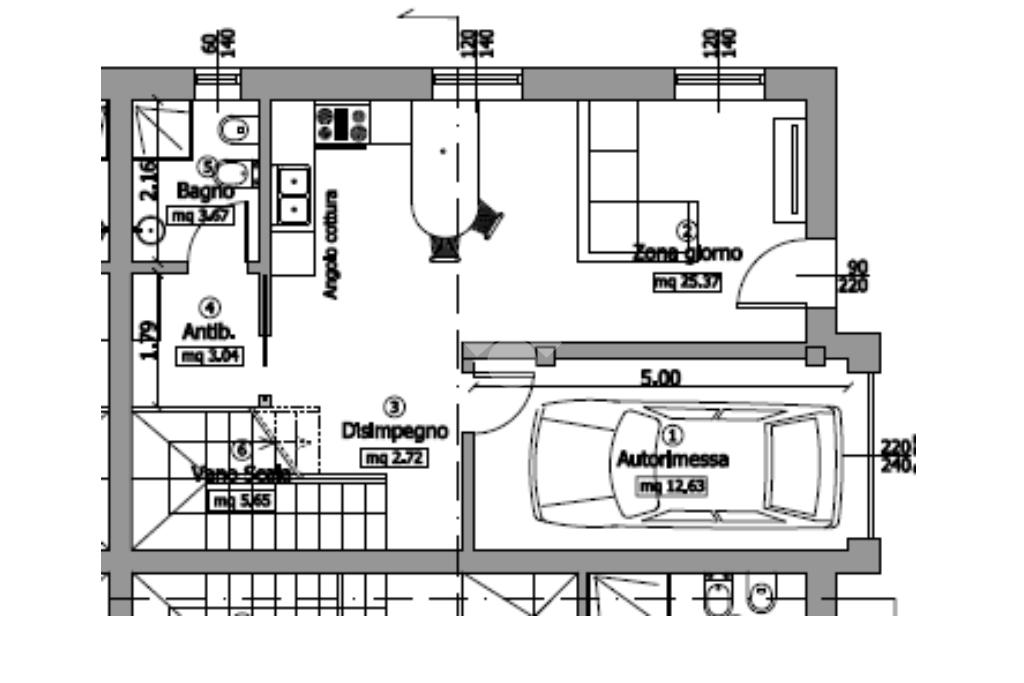
Piano terra: soggiorno con angolo cottura, bagno, autorimessa privata e accesso diretto al giardino esclusivo.

Primo piano: due camere da letto, studio e secondo bagno, impreziositi dal caratteristico tetto in legno a vista.

Dotazioni e caratteristiche: riscaldamento autonomo a pavimento, cappotto termico, infissi esterni di nuova generazione, impianto fotovoltaico da 1,5 kw con predisposizione fino a 5kw, tapparelle elettriche con apertura e chiusura centralizzata, classe energetica prevista A3.

Per maggiori informazioni o per fissare una visita contattaci al 059.850446 (anche WhatsApp).

Mostra tutto

Nelle vicinanze

Scuole Scuole
Scuole
2,4 Km
Farmacia Farmacia
Muzzioli
2,7 Km
Bar Bar
Bar
2,3 Km
Ristoranti Ristoranti
Garuti
3,0 Km
Mostra tutto

Caratteristiche

Rif.:
60933789
Piano:
1 di 2 (Piano su più livelli)
Camere da letto:
3
Arredamento:
Assente
Condizionamento:
Predisposizione impianto
Ascensore:
No
Mostra tutto
Prezzo Prezzo
€ 245.000
Rata mutuo Rata mutuo
€ 1.155 / mese
Spese annue Spese annue
€ 0
Proponi il tuo prezzoProponi il tuo prezzo

Classe Energetica

A3
A3
A3
A3
A3
A3
A3
A3
A3
EP globale non rinnovabile:
23.00 kW h/m² anno
EP globale rinnovabile:
52.00 kW h/m² anno
EP invernale del fabbricato:
EP estiva del fabbricato:
Anno di costruzione:
2024
Riscaldamento:
Autonomo
Tipo impianto:
A pavimento
Tipo alimentazione:
Pannelli

Ti interessa visionare l'immobile?

Fissa un appuntamento  Fissa un appuntamento

Richiedi informazioni

Clicca su Leggi per aprire l'informativa
* Questi campi sono obbligatori

Calcola il tuo mutuo

Semplice e senza impegno
Anticipo

( % )
Mutuo

( % )

pochi semplici passi

inserisci i tuoi dati
Questionario completato
Grazie per aver richiesto un appuntamento senza impegno con un nostro Consulente del Credito e Assicurativo.

Hai inserito correttamente tutti i dati necessari e a breve riceverai una e-mail con un link da convalidare per inviare i tuoi dati.
Affiliato
Agenzia Soliera Srl
Via Garibaldi, 36 41019 Soliera (MO)

Il nostro staff


  • Andrea Artioli
    Affiliato

  • Roberto Malavasi
    Collaboratore

  • Genny Gemelli
    Coordinatrice

  • Sara Monari
    Collaboratrice

  • Lorenzo Santachiara
    Responsabile
Via Garibaldi, 36 41019 Soliera (MO)
Zona: Appalto-Soliera-Limidi–Sozzigalli–Sorbara–Ganaceto–Lesignana
Mostra su mappa
Orari: Orari: dal lunedì al venerdì dalle 9.00 alle 13.00 e dalle 15.30 alle 19.30 Il sabato dalle 9.00 alle 13.00.
Affiliato
Agenzia Soliera Srl
Via Garibaldi, 36 41019 Soliera (MO)

2026 Tecnocasa Franchising S.p.A. - P. IVA 08365160152 - Via Monte Bianco 60/A 20089 Rozzano (MI). Ogni agenzia ha un proprio titolare ed è autonoma. Privacy policy | Policy utilizzo | Cookie policy